Als het extreem hard regent voeren we veel relatief schoon water via het riool af naar het buitengebied. Door klimaatbuffers aan te leggen wordt het water eerder vastgehouden. Zo kan water sneller in de bodem zakken. Dit is belangrijk in verband met de langere periodes van droogte.
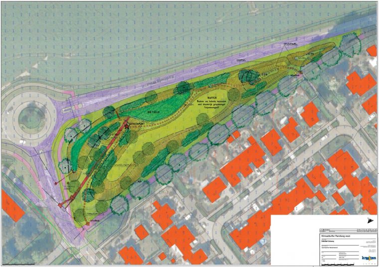
Klimaatbuffer Molenweg Nederweert
Bij de Molenweg aan de rand van Nederweert legt de gemeente Nederweert zo’n klimaatbuffer aan. Het is niet de eerste keer dat ze dat doen. Na gesprekken met bewoners is er extra aandacht voor een groene inrichting. Zo komt er een bomenleerpad.
Bewoners praatten mee
Op maandag 6 juli was er een inloop georganiseerd op de locatie aan de Molenweg. Deze was, vanwege de geldende coronamaatregelen, bestemd voor direct aanwonenden. De inwoners hadden veel vragen en goede suggesties. Ook waren er enkele zorgen over geuroverlast en ongedierte. Met alle input is een definitief ontwerp gemaakt dat nu ter inzage ligt voor een omgevingsvergunning. De bewoners hebben een brief gekregen met de vragen en antwoorden.
Verfraaiing landschap
“De klimaatbuffer zal na aanleg en een periode van ‘aangroei’ een mooie groene entree vormen vanaf de rotonde aan de Molenweg,” aldus wethouder Voss. “Hiermee geven we invulling aan het door de raad vastgestelde groenbeleidsplan en het klimaatadaptatieplan.” De inrichting kent vele soorten bomen, struiken en kruiden. “Daarnaast biedt het gebied mogelijkheden voor verdere recreatieve invulling van de strook langs de Randweg West,” aldus de wethouder.






4 Reacties
Prima om op deze manier water vast te houden maar noem het dan gewoon wat het is, een waterbuffer en geen klimaatbuffer. Klimaat kun je niet bufferen. Maar ja, met klimaatkreten scoor je natuurlijk wel beter.
Als je als wethouder niets laat zien, kun je hetgeen dat je sowieso moet doen het maar beter proberen mooi ‘uit te leggen’.
Hoorde ook dat er helemaal niets meegenomen is van de wensen van de omwonenden. Ze hebben precies gedaan wat ze zelf voor ogen hadden. Hoezo burgerparticipatie????
Het is nu een zooi onkruid . Echt geen mooie binnenkomer in de gemeente