Naast de woningbouwplannen aan Staat én op Budschop heeft het college van Nederweert ook een principeverzoek ontvangen voor een nieuwe woningbouwontwikkeling aan de Bosserstraat in Nederweert. Dit initiatief beoogt de ontwikkeling van circa 80 wooneenheden.
Woningen bouwen in Nederweert
Het college van B&W is bereid om principemedewerking te verlenen aan een bestemmingswijziging naar wonen, waarbij bouwplan, programma en haalbaarheid nader met de ontwikkelaar worden uitgewerkt op basis van een te sluiten samenwerkingsovereenkomst. Het plan omvat de volgende verdeling van woningen, waarbij tweederde van de woningen in het betaalbare en sociale segment zal vallen:
- Sociaal: 28 woningen
- Rijwoningen: 22 woningen
- Tweekappers: 20 woningen
- Vrije kavels: 13 kavels
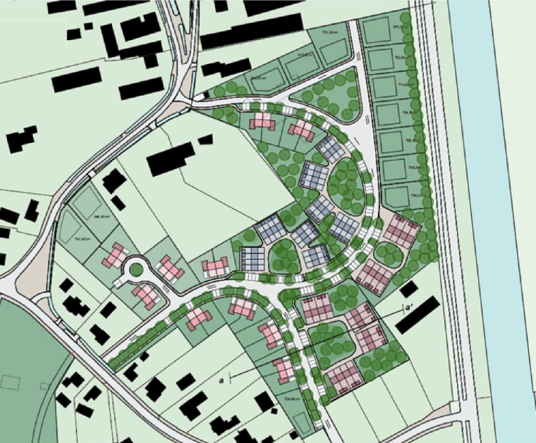
Initiatiefnemers en grondeigenaren hebben een stedenbouwkundig architectenbureau ingeschakeld om de planstudies uit te voeren. Ook hebben zij een ontwikkelende bouwer achter zich staan om een haalbaar plan te realiseren. In een eerste schets wordt weergegeven hoe de woningbouw op de betreffende locatie kan worden gerealiseerd. Deze schetsen zijn vooralsnog slechts impressies en geen concrete uitwerkingen.

Provincie Limburg
De gronden bevinden zich in het buitengebied, waardoor er afstemming met de Provincie nodig is om woningbouw mogelijk te maken. Gezien de toegenomen woningbouwambities en de beperkte ruimte in de kern van Nederweert, wordt verwacht dat de Provincie positief zal staan tegenover woningbouw op deze locatie. De principemedewerking van het college van B&W biedt hierbij ondersteuning in de gesprekken met de Provincie. Omwonenden en andere belanghebbenden zullen conform de Omgevingswet worden betrokken bij de planuitwerking.
Toetsen haalbaarheid
Dit jaar zal de haalbaarheidsfase voor dit initiatief worden gestart. Tijdens deze fase zal samen met de initiatiefnemer worden onderzocht onder welke condities de ontwikkeling mogelijk is. Tevens zal er worden toegewerkt naar een samenwerkingsovereenkomst met de initiatiefnemers om daadwerkelijk tot ontwikkeling te komen.







14 Reacties
Wat de vlak in de buurt wonende agrariërs daar van vinden laat zich indenken en voor zover ik weet zitten er een paar vlakbij, maar ach, met zoveel bouwactiviteit kan er wel een paar miljoen uitgetrokken worden om die op te kopen en een gratis bouwperceel in de vrije sector kan meehelpen, al kan ik me voorstellen dat een boer die een leven lang “vrij” heeft gezeten er niet op staat te kijken ineens omsingeld te zijn door burgermannetjes wier enige binding met het platteland de fles melk in hun koelkast is en de kaas op hun boterham, maar met al die regeltjes vanuit Den Haag en Brussel kan ik me wel indenken dat menig boer er de brui aangeeft en wel zo dat in de nabije toekomst we in plaats van een exporteur van landbouwproducten een importeur van landbouwproducten worden, kaas en melk voorop en al die vrijgekomen landbouwgrond, waar ooit koeien graasden, graan groeide en het land van voedsel voorzagen, kunnen we dan helemaal volbouwen met megaloodsen van waaruit Amazon, Bol.com, Alibaba.com enzovoort onze dorst naar goedkope prullaria stillen en wat de plaatselijke middenstand daar van vindt, laat zich indenken die denk ik op termijn dezelfde weg op gaat als de boerenstand nu en de mammoeten nog langer terug.
Hans wat ben je toch een doemdenkende boerenzoon die de kans heeft gemist zich te nestelen in een warm nestje, op de manier zoals momenteel geboerd wordt kan het niet langer dat weten ook de boeren…we moeten meer aandacht en centjes besteden aan de natuur en leefomgeving, dat zijn zijn we verplicht aan onze kinderen, kleinkinderen, achterkleinkinderen etc etc, een mooie groene wijk erbij kan best, alle woningen verplicht energieneutraal en weinig verharding zodat een hoosbuitje geen kwaad doet…we worden er allemaal beter van.
Gegroet doemdenker
Hans, wat een enorm negatief wereldbeeld heb je. Het moet niet meevallen om jou te zijn. Ik wens je veel sterkte en positiviteit toe. Groeten, Nederweerter inwoner.
Mooi plan, met de vrije sector woningen met de rug tegen de drukke N266 aan.
Hadden ze maar eerst wat geld gestoken in een randweg was het plan nog mooier geweest.
Gezien de politieke aardverschuiving bij de laatste verkiezingen Nelleke, die partijen in de regering brengt die de zin van klimaatmaatregelen betwist behoor ik – doemdenkende boerenzoon – niet tot een minderheid en eerder tot een meerderheid en alleen een TOTALITAIR regime kan mensen die in meerderheid de zin van – wereldwijd – triljoenen aan klimaatmaatregelen besteden betwist DWINGEN energieneutraal te zijn, wat misshien qua huishoudelijk gebruik kan lukken Nelleke, maar qua industrieel gebruik bijlange niet Nelleke of we moeten alle woestijnen van de wereld vol zonnepanelen leggen Nelleke en de halve Stille Oceaan vol windparken Nelleke maar voor de rest geef ik je gelijk en kijk samen met mijn kinderen, kleinkinderen en achterkleinkinderen etc. etc. reikhalzend uit naar het TOTALITAIRE regime dat ons naar een Glorieuze Toekomst leidt al betwijfel ik of dat een “warm nestje” zal zijn, laat staan voor “doemdenkers” als mij waar een TOTALITAIR regime wel raad mee weet.
Fijn dat Nederweert er werk van maakt! Misschien dat er een psycholoog kan komen wonen in één van de nieuwe woningen, ik merk dat er een tekort is in Nederweert.
Nelleke, ik denk dat een psycholoog hier weinig mee kan, iets met “yater “ erachter lijkt me wel een oplossing, tjonge tjonge wat een doemdenkerij…
Als we nu per direct stoppen met CO2 uitstoot duurt het nog een eeuw voor de atmosfeer een CO2 gehalte heeft van 100 jaar geleden wat kan lukken als we 10.000+ kerncentrales binnen nu en 10 jaar wereldwijd gaan bouwen wat 1+ triljoen Euro gaat kosten en het aflossen van die kostten zal wel een 100+ generaties benodigen wat een kleine prijs is voor een zeespiegelstijging van 50+ meter wereldwijd.
Woningbouw is haast onmogelijk in buitengebied dit door omgevingsvergunning etc.
Eerst vleermuizen nu konijn en het haasje op de beschermde lijst!
Vooral konijn zit daar en die staat niet toe dat de natuurliefhebbers bouwen.
Hans, je begeleiding hier, kom van die computer af. Je computertijd is voorbij. Kom, we gaan verder met je stukje wat je aan het haken bent.
Tja joep wij mens pakken al alles af van de dieren dus niet gek dat er regels voor zijn.
ik woon zelf rand buitengebied en weet nu al dat er eens hier langs mij gebouwd gaat worden en het mooie bosje bomen waar ieder jaar vele dieren in vertoeven dan plat word gemaakt voor stenen en betonnen constructies.
maar tja als nu al de recriatie mensen hier langskomen en gaan bemoeien wat ik in mijn groene tuin moet doen want tja een terras daar vijver hier en vooral veel minder groen want ja wie wil nou dat onderhouden. beton en tegels veel relaxender. deze mensen die er nu wonen wonen er hier al heel lang en sommige al generaties. Jammer dat de nieuwe generatie alleen maar naar hunzelf kijken en anderen alles wil afnemen want zij zijn zielig..
En nelleke als je zo tegen boeren bent wilt u dan aub nu stoppen met consumeren uit de winkel van van boeren moet u het eten hebben. of dit nu uit nederland of elder komt. toon mij aub uw moestuin waarmee u het hele jaar kan leven en dan neem ik het terug maar anders eet een worden en praat niet neerbuigend over een groep want zonder boer zou u de eerste zijn die in het gat zou gaan. Respect werkt 2 kanten op maar mijn respect bent u kwijt met uw woorden keuze. Door mijn woorden zal ik uw respect niet winnen maar dat hoeft ook niet. Samen zijn we sterk en er zullen dingen veranderen. en samen maken we dit goed aan alle dingen komt iets goeds uit. dit is nog nooit anders geweest
@bewoner buitengebied nederweert
Vrij ironisch dat je begint over de nieuwe generatie als je ze zelf geen woning gunt. Voor het geval dat het je is ontgaan; we hebben een ernstige woningcrisis in dit land. De NOS berichtte gisteren nog dat de huizenprijzen in de afgelopen 5 jaar met 50% (!) zijn gestegen (significant hoger dan de inflatie in datzelfde tijdsbestek). Niemand wil een woning in zijn achtertuin, dat begrijp ik ook wel, maar het is onhoudbaar om dit tegen te houden.
Overigens is volgens het CBS 54% van ons landoppervlak in gebruik voor landbouw. Als je graag meer groen zou willen zien dan zouden we een fractie daarvan om kunnen zetten in natuur, ter compensatie voor dat mooie bosje bomen . Het lijkt mij dat onze voedselproductie dan ook niet in het gedrang komt.
Jan ik begrijp je inzet maar dan kom ik met een andere vraag.
de huidige huizen die gebouwd worden hebben best grote oppervlakken. dan kunnen we ook kleinere huizen kwa oppervlak bouwen en mss dan 1 verdieping hoger. dan pakken we weiniger ruimte in dan nodig is. en mbt je bosje je weet toch ook wel dat als er een bos staat dat meer dan 50+ jaar er al is met al zijn grote bomen etc dat dit niet in 5 jaar weer terug is als kleine sprietjes geplant worden. ik gun de nieuwe generatie zeker woningen. maar men hoeft niet in villas van 4+ ton te zitten men kan net als vroeger huizen maken van een lagere kosten structuur. waarom kan in weert bv meerdere tiny houses wijken worden waarbij kwa oppervlak er 8 houses staan waar normaal maar 3 huizen die nu gebouwd worden op plek hebben. er zijn vele opties maar als ik kijk naar de nieuwe huizen in budschop en nederweerter wijken dan zijn zij zeer groot in oppervlak vergeleken bij bv de poort van limburg. Dus men kan het ook simpler maken. kleinere huizen die ong tot 2.5 a 3 ton gaan ipv de duurdere. Wil men groter oppervlak geen prob dan koop een duurdere woning maar niet in de betaalbare wijken voor de nieuwe generatie. Deze generatie heeft meestal al weinig spaargeld en zou alleen maar ook als stel wel in zo een huis kunnen en later mits mogelijk doorgroeien naar grotere huizen. Maar hier moet alles groter en vol met beton en stenen. Natuur reinigd de lucht maar rara we halen al het goede weg. er is een balans maar die wil kennelijk niemand uit de kernen meer.
@bewoner buitengebied nederweert
Daar sluit ik me volledig bij aan, het zou lonen om meer starters- of seniorenwoningen te bouwen.