De gemeente Weert start met de ontwikkeling van fase 3 van het plan Laarveld
De woningmarkt is aangetrokken. Ook in Weert. De verkoop van kavels in fase 2 van het plan Laarveld is snel verlopen. Alle kavels in fase 2 zijn verkocht. Alleen in fase 1 zijn nog enkele bouwkavels te koop. Wethouder Wendy van Eijk: ‘Het is nu hoog tijd om te starten met de ontwikkeling van Laarveld fase 3’.
Uitgifte kavels in fase 3 eind 2020
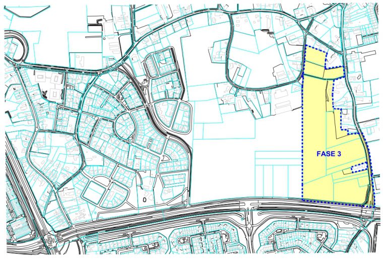
Fase 3 is gelegen aan de Laarderweg en wordt verder begrensd door de Schonkenstraat, Schonkenweg, Gertrudisstraat en Ringbaan-Noord. Er komen 160 woningen in de categorieën: zelfbouw, projectmatig (vrijstaand, 2-kappers, patio’s en middeldure huurwoningen) en sociale huurwoningen. Op dit moment wordt er een stedenbouwkundig plan opgesteld. Aansluitend wordt het bestemmingsplan gemaakt en in procedure gebracht. Wethouder Van Eijk: ‘Ik verwacht dat we eind 2020 de werkzaamheden kunnen starten voor het bouwrijp maken van het gebied. Dan wordt ook gestart met de verkoop van bouwkavels’.
Duurzaamheid
Het aspect duurzaamheid wordt steeds belangrijker. Door zijn groene inrichting, infiltratie van hemelwater en materiaalgebruik in het openbaar gebied, is Laarveld fase 1en 2 een duurzaam woongebied. Woningeigenaren hebben ook zelf de nodige duurzaamheidsmaatregelen getroffen. Denk daarbij aan het gebruik van zonnepanelen en warmtepompen. In Laarveld fase 3 krijgt duurzaamheid nog meer aandacht. Er wordt geen gasnet aangelegd. Op dit moment wordt onderzocht welke alternatieve voorziening het beste past in dit gebied.
Naast het verwarmen van de woningen zijn er nog andere manieren om duurzaam te bouwen. Daarbij kan gedacht worden aan toepassing van circulaire bouwstoffen, het vergroten van de biodiversiteit, deelautosysteem, een warmtenet etc. De komende maanden worden alle mogelijke maatregelen geïnventariseerd en worden de keuzes gemaakt voor de toe te passen duurzaamheidsvoorzieningen.
Weert woonstad
Weert groeit. Voor het eerst in de historie heeft Weert meer dan 50.000 inwoners. Ook het aantal huishoudens neemt toe. De woningmarkt staat onder druk. We moeten tempo houden op de realisatie van bouwplannen. Zo blijven we een aantrekkelijke stad om in te wonen, werken en recreëren.
Informatie
Zodra er nieuwe informatie beschikbaar is over de plannen van fase 3 van Laarveld wordt dit bekend gemaakt via de website www.laarveld-weert.info. Ook worden er dan informatieavonden georganiseerd waarin de plannen worden toegelicht.






Er zijn nog geen reacties geplaatst