Skip to content

Realisatie fietsenstalling Korenmarkt en vergroening binnenstad Weert

20 oktober 2018 | 17:40

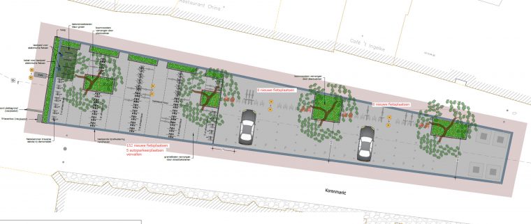
Op maandag 22 oktober wordt gestart met de realisatie van een fietsenstalling aan de Korenmarkt in Weert. Hier worden 5 parkeervakken omgevormd tot een stalling met een capaciteit van 160 fietsen. De werkzaamheden duren, afhankelijk van de weersomstandigheden, ongeveer 3 weken. Aansluitend worden diverse locaties in de binnenstad voorzien van extra groen. De vergroening is uiterlijk op vrijdag 30 november gerealiseerd.

Fietsenstalling Korenmarkt
Op de Korenmarkt worden de bestaande fietsbeugels verplaatst. In totaal worden 5 parkeervakken omgevormd tot een stalling met 160 fietsparkeerplaatsen. Ook worden er twee laadpalen voor elektrische fietsen geplaatst. De stalling wordt aan weerszijde voorzien van een haag en de plantvakken van de bomen worden vergroot. Ondergronds wordt de bodemstructuur voor de bomen aangepakt zodat deze er de komende jaren weer mooi bij staan. Aan de andere zijde van de Korenmarkt worden ter compensatie vier nieuwe autoparkeerplaatsen aangelegd. Wethouder Martijn van den Heuvel (openbaar gebied en vervoer): ‘Fietsgebruik stimuleren kan alleen als de binnenstad goed bereikbaar is. Daar hoort ook bij dat fietsen goed en op een nette wijze, kunnen worden gestald. Met de aanleg van een mooie fietsenstalling midden in het centrum stimuleren we het gebruik van de fiets. De groene aankleding van het centrum zorgt voor een betere sfeer en mooie uitstraling’.

Vergroening binnenstad
Naast het extra groen rondom de fietsenstalling wordt er op een vijftal locaties grenzend aan de Markt en Langstraat extra groen aangeplant. Dit varieert van leibomen, hagen en bodembedekkend groen. Op deze manier worden het Oud Kerkhof, Kromstraat, hoek Maasstraat – Langstraat, Paradijsstraatje en rondom het parkeerdek Walburgpassage aangepakt. Daarnaast wordt eind dit jaar gestart met de herinrichting van de Nieuwe Markt. In december wordt de gemeenteraad gevraagd een besluit te nemen over de herinrichting van de Hegstraat waarbij onder andere de bewaakte fietsenstalling een update krijgt en er extra groen wordt aangelegd.

Advertentie

Er zijn nog geen reacties geplaatst


Plaats een reactie

Je e-mailadres wordt niet gepubliceerd. Vereiste velden zijn gemarkeerd met *

Advertentie

Foutje gespot?

Oeps, je hebt kennelijk een foutje gespot.
Fijn dat je ons op de hoogte brengt. Met een paar klikken kun je ons hierover een berichtje sturen. We doen ons best het foutje zo snel mogelijk te herstellen en je hiervan op de hoogte te brengen.

Advertentie

Meer nieuws

20260508_tools-en-service_1
Ondernemersvereniging Nederweert
17 mei 2026 | 18:00
2026_05_13-Kunstroute-Mooi-Rooj-op-29-en-30-augustus
30 kunstenaars
17 mei 2026 | 15:00

Advertentie