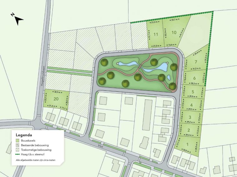
Vandaag is de verkoop van 7 bouwkavels in het vernieuwde plan ”Peelderveld” te Ospel gestart.
Peelderveld Ospel
Peelderveld ligt aan de rand van het kerkdorp Ospel, een gebied voor de echte natuurliefhebber. Met de juiste partij, bouw je hier eenvoudig en snel jouw vrijstaande woning.
Ben je op zoek een grote kavel of juist een kleinere kavel? Binnen dit project is er voor iedereen wat wils. De kavels variëren tussen de 495m² en 818m² en de prijzen beginnen vanaf € 110.000,– v.o.n.
Wat vind jij belangrijk? De prijs, de grootte of de ligging?
Kies het bouwnummer dat het meest bij jou past en bekijk alle informatie op de website of informeer bij de verkopende makelaars.
Saelmans Makelaardij
Onzelievevrouwestraat 2 | 6004 AC Weert
0495-533893
info@saelmans.nl
www.saelmans.nl
Jacobs Gijsen
Ospelseweg 23 | 6031 AK Nederweert
0495 460 180
info@jacobsgijsen.nl
www.jacobsgijsen.nl




















Er zijn nog geen reacties geplaatst