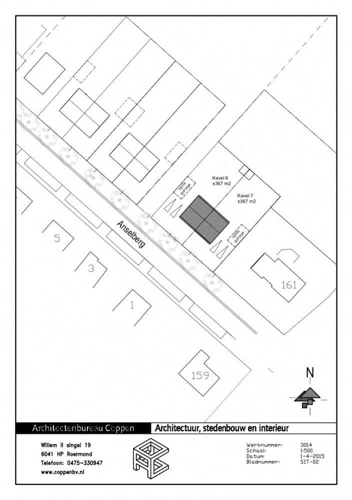
Op de Anselberg in Ospeldijk zijn twee halfvrijstaande starterswoningen toegevoegd aan het plan. De bouw is al te bezichtigen! De inhoud van de woningen bedraagt maar liefst circa 400m3 en zijn gelegen op een royale woonkavel van bijna 375m2.
De woningen
- de grote ramen waardoor en veel lichtinval is;
- de woonkamer met open keuken van ca. 34m2;
- hun praktische indeling met 3 slaapkamers, een grote badkamer en de mogelijkheid voor een 4de slaapkamer op zolder;
- vloerverwarming op de 1e en de tweede 2e verdieping;
- een grote kavelafmeting waardoor het uitbouwen van de woonkamer/keuken en een garage tot de mogelijkheden behoort zonder dat dit ten koste gaat van de tuin;
- de moderne energiebesparende maatregelen.
Kortom een ideale woning voor een jong startend gezin
Indeling
- begane grond: hal/entree met meterkast en toiletruimte, woonkamer met trapkast en open keuken, trap naar 1ste verdieping;
- 1ste verdieping: overloop, 3 slaapkamers en badkamer;
- 2de verdieping: vaste trap naar ruime zolder, C.V.
Gemeentelijke starterslening
Indien je als koper voldoet aan bepaalde normen en vanwege de uiterst gunstige koopsom van deze woningen kun je in aanmerking komen voor een gemeentelijke ‘Starterlening’. Deze bedraagt maximaal € 37.000. Deze starterlening is sowieso de eerste drie jaar rente en aflossingsvrij en kan daarna eventueel nog worden verlengd.
De maandelijkse lasten bij een maximale starterslening bedragen bruto ca. € 565 (netto ca. € 450 p.m. indicatief). De makelaar kan je hier meer informatie over verstrekken.
Optie-/Prijslijst
De kavels zijn 367 m2 en hebben een koopsom van € 160.000,00 v.o.n.
Anselberg, de ideale woonomgeving voor mensen die van rust en ruimte houden en van grote halfvrijstaande woningen op een ruime kavel tegen een betaalbare prijs.
Voor meer informatie kijk op de website van Jacobs – Gijsen.
Bel 0495-460180 of mail: info@jacobsgijsen.nl







Er zijn nog geen reacties geplaatst